Live the Dream
						559 Tauwhare Road, Matangi, Waikato
													
				
								$1,665,000
							
						 
						
													Sold
												
						
					
											
				- 
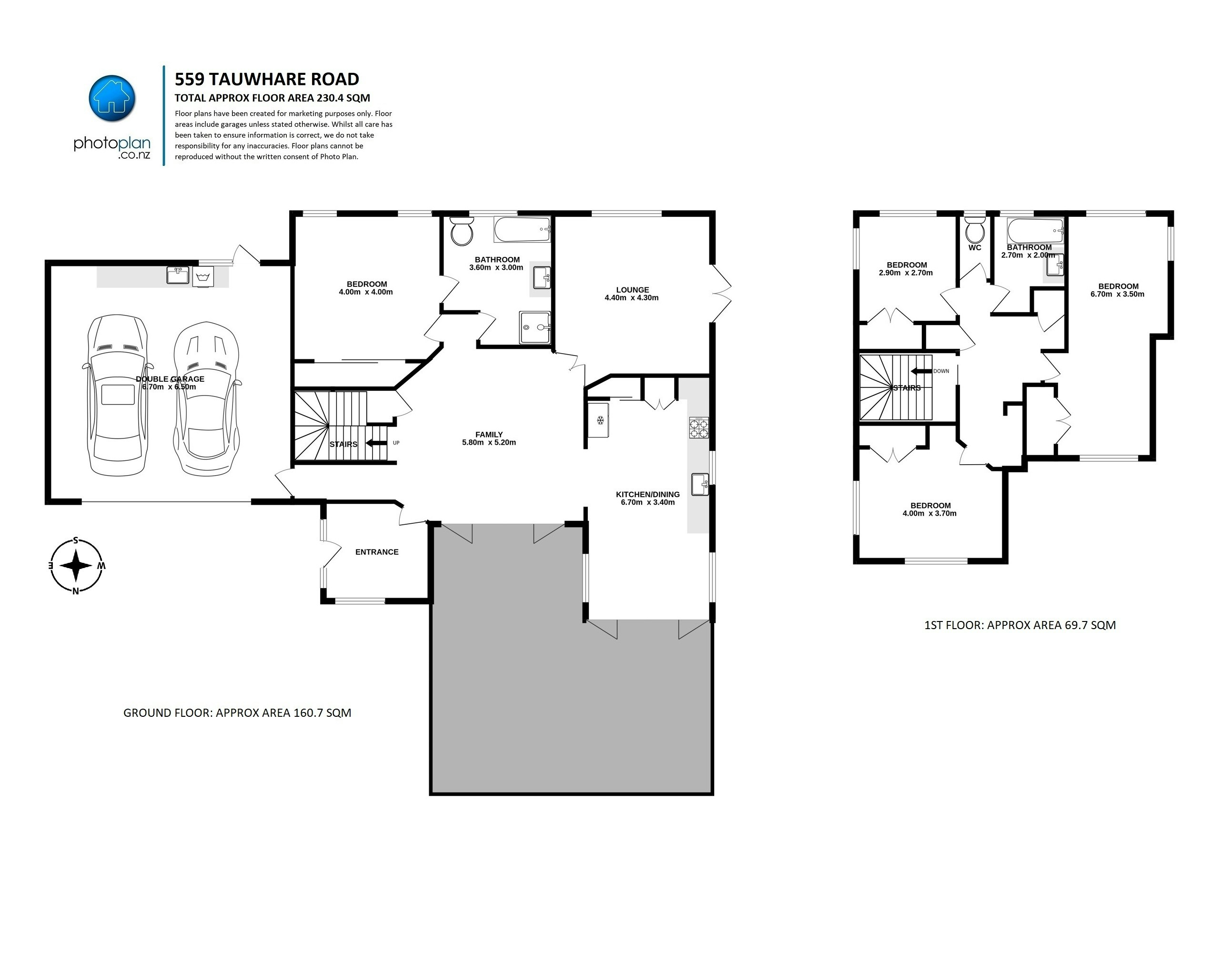
							4 bedrooms

 - 
							2 bathrooms

 - 
							2 living rooms

 - 
							2 car garage

 - 
							230m2

 - 
							Country Living

 
'
										
										
										
									
								Tailored for an exceptional lifestyle, your rural retreat captures the essence of country living. The landscaped 5041sqsm property hosts a modern brick home and an architecturally designed portable building with a contemporary Scandinavian feel, both of which blend seamlessly into the park-like environment.
 
									
									You can holiday at home, spend summer days splashing in the depth-graded, salt-water pool, and dine and entertain outdoors. Thoughtfully configured, the first floor of your home has three bedrooms, a bathroom and a separate toilet. A peaceful master bedroom is located downstairs that accesses a full bathroom with underfloor heating.
 
									
									The fluid way your open plan kitchen-dining area, and family zone spill onto the sun-drenched courtyard creates a seamless indoor-outdoor living experience. The bifold doors open to a louvred patio where you can chill out and keep a watchful eye on the kids in the pool. When you need some quiet time, the lounge beckons.
 
									
									Your portable building is the ultimate office escape, providing a peaceful work sanctuary. Complete with a kitchenette, shower, toilet, sleeping area and large deck; the options are endless.
 
									
									Elaborately packaged, your home boasts two ducted heat pumps, a security camera, a standalone shed with a workbench, Hyperfibre broadband, and excellent utilities. The shed and portable building are versatile spaces that will adapt to your personal needs.
 
									
									Native trees encompass the gated property, giving a lovely sense of privacy and attracting bird life. And with Matangi Village approximately 1km up the road, children can walk or bike to school. In addition to fantastic schooling, the Matangi Village also caters to all your needs, with a Four Square, cafe, takeaways and a taproom at the local brewery. Access to the expressway is nearby for commuters, and Waikato University and Hamilton City are only a short drive away.